DAS Kelo

Esittely

Valmistunut 2019 kesällä

Yliopistonkatu 21

- Lattiamateriaalina laminaatti
- Kaakeloidut kylpyhuoneet
- Asunnoissa ranskalainen parveke
- Astianpesukoneliitäntä
- Talon pohjakerroksessa yhteistilat ja pesula (5 pesukonetta ja 5 kuivuria), asunnoissa ei ole pyykinpesukoneliitäntää
- Asuntokohtaiset häkkivarastot
- Sauna talon ylimmässä kerroksessa
- Pyöränkorjaustila
- Pyöräkatos
- Smartpost

  • Sauna
  • Pyykkitupa
  • Hissi

Asuntotyypit

Yksiö

Koko
Kuvaus
Vuokra/kk
26 m²
448,5 €
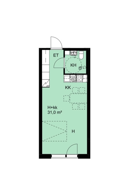
31 m²
521,11 €
Sijainti

Rantavitikka

Rantavitikka on DASin suurin rakennuskeskittymä aivan Lapin yliopiston ja Lapin AMK:n tuntumassa. Alueella on kaikkiaan 13 DASin taloa, jotka tarjoavat moninaisia eri tyyppisiä asumismuotoja.

Lue lisää
Tutustu asuntoihin ja hae asumaan