DAS Juhani

Jokiväylä 26
Yksiö 6 kpl
Kaksio 2 kpl

Esittely

Jokiväylä 26
Valmistunut 1987, perusparannettu 2023

DAS Juhanin asukkaiden käyttömaksu on 10,00 €/asuntopaikka ja tai asukas/kk. Käyttömaksun lisäksi asukas maksaa kuukausittain veden käytöstä asuntokohtaisesti mitatun kulutuksen perusteella.

Asunnon varustus:

  • Keraaminen liesi
  • Liesikupu
  • Jääkaappipakastin
  • Astianpesukone
  • Laminaattilattia
  • Taulukiskot (metalli)
  • Pyykinpesukoneliitäntä
  • Asuntokohtainen ilmanvaihtokone

  • Sauna
  • Pyykkitupa
  • Hissi
  • Autopaikkoja

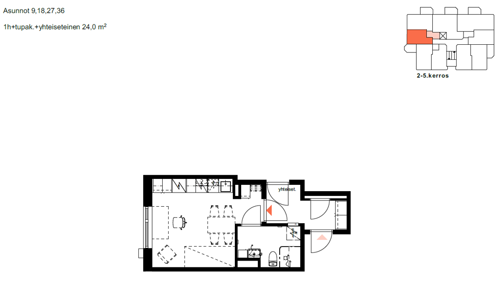
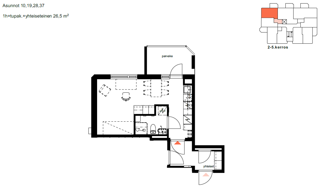
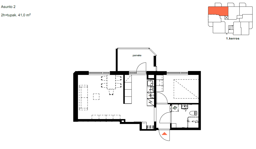
Asuntotyypit

Yksiö

Koko
Kuvaus
Vuokra/kk
23,5 m²
396,45 €
24 m²
404,88 €
26 m²
421,98 €
26,5 m²
430,1 €
37 m²
588,67 €

Kaksio

Koko
Kuvaus
Vuokra/kk
40 m²
632,4 €
41 m²
648,21 €
Sijainti

Rantavitikka

Rantavitikka on DASin suurin rakennuskeskittymä aivan Lapin yliopiston ja Lapin AMK:n tuntumassa. Alueella on kaikkiaan 13 DASin taloa, jotka tarjoavat moninaisia eri tyyppisiä asumismuotoja.

Lue lisää
Tutustu asuntoihin ja hae asumaan